Bergblumenstrasse

Jahr   2018

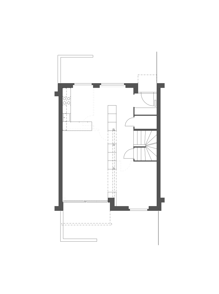
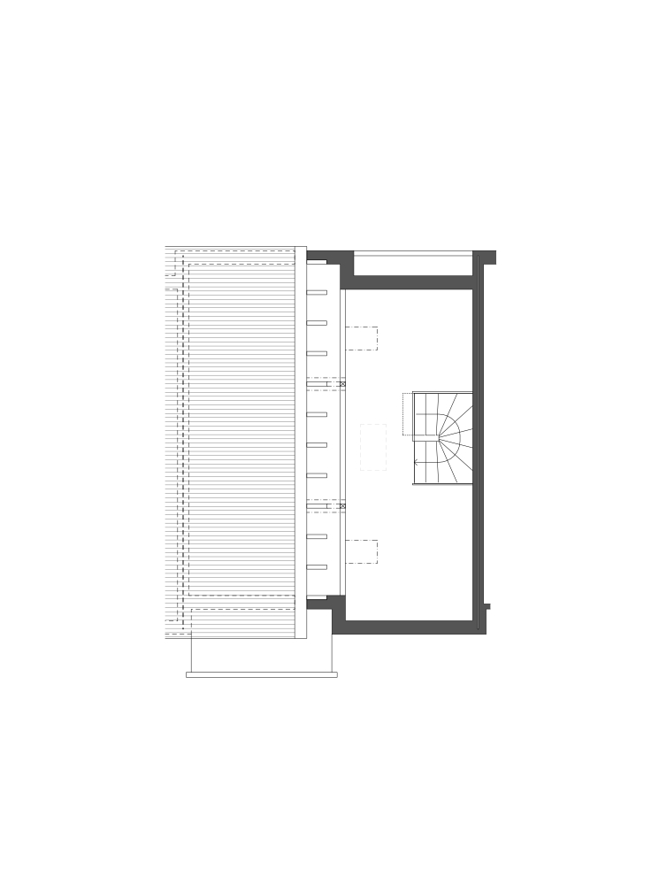
Das Reiheneinfamilienhaus wurde 1967 erstellt. Beim Umbau gestaltete man das Erdgeschoss grosszügiger und erweiterte die bestehende Treppe ins Dachgeschoss.